Построен каркасный дом д. "Кипень". Объект сдан 03.12.2025
Тип сооружения: Каркасный дом.
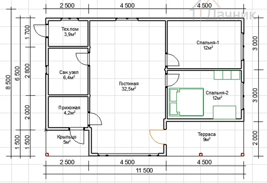
Размеры: 11,5х6м с террасой.
Стоимость строительства: 5 317 400 руб.
Место: ЛО, д. "Кипень".
Проект: за основу взят Каркасный дом 13х8,5м. Дк-230 из каталога
Посмотрите видеообзор на этот проект
Вы можете заказать у нас такой же или похожий дом, оставьте заявку и наш специалист свяжется с вами для подбора идеального проекта.

