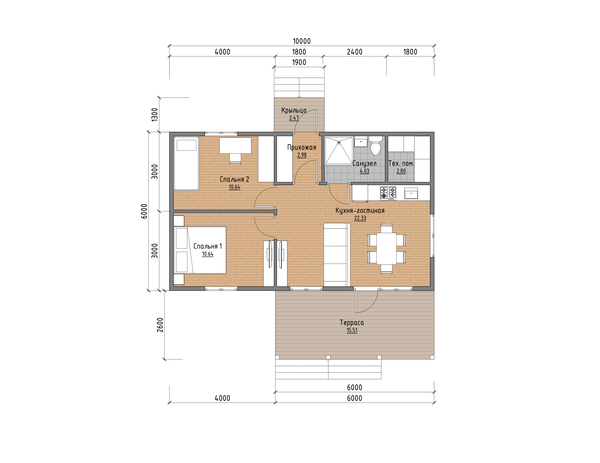
Каркасный дом 6х10м. ДК-231
Стоимость:
* Цена в теплом контуре, без привлечения кредитных средств4 757 650 ₽
Стоимость с 15 апреля: 5 138 262 ₽
2 спальни
1 санузел
Комплектации дома
Пиломатериалы на дом
Тип пиломатериала
Сухая строганная доска
Перекрытия
Составная обвязка
Строганная доска 45х145мм.
Сетка от грызунов
Отсутствует
Черновые полы
Строганная доска 20х95мм.
Лаги пола
Строганная доска 45х145мм.
Лаги потолка
Строганная доска 45х145мм.
Стропильная система
Строганная доска 45х145мм.
Стены и перегородки
Стены наружные
Строганная доска 45х145мм.
Перегородки внутренние
Строганная доска 45х95мм.
Подкладная доска, укосы, ригеля
Строганная доска 45х145мм.
Высота потолка
2500мм.
Крыша
Обрешетка
Строганная доска 20х95мм.
Контробрешетка
Строганный брусок 45х45мм.
Кровельное покрытие
Металлочерепица Супермонтеррей
Водосточная система
Отсутствует
Паро-гидро-ветроизоляция
Влаго-ветрозащита
Ондутис Smart A 100
Пароизоляционная пленка
Ондутис Smart B
Подкровельная супердиффузионная мембрана
Ондутис Smart D
Герметизация пароизоляционной пленки
Лента Fakro HausBand
Утепление
Пол
Rockwool Лайт Баттс 150мм.
Стены
Rockwool Лайт Баттс 150мм.
Потолок
Rockwool Лайт Баттс 150мм.
Перегородки внутренние
Отсутствует
Наружная отделка
Контробрешетка на фасад
Сухая рейка 20х45мм.
Стены наружные
Имитация бруса, карельский профиль
Свесы и углы, наличники
Строганная доска 20х95мм.
Пол террасы (при наличии)
Террасная доска, Вельвет
Ограждение террасы (при наличии)
Строганная доска 20х95мм.
Окна, двери
Оконные блоки и дверь на террасу
Двухкамерные стеклопакеты ПВХ
Аксессуары к оконным блокам
Отливы внешние
Входные дверные блоки
Металлическая Россия
Перегородочные двери
Отсутствуют
Внутренняя отделка
Внутренняя контробрешетка
Отсутствует
Стены
Отсутствует
Перегородки
Отсутствует
Потолок
Отсутствует
Напольное покрытие
Отсутствует
Коммуникации
Вентиляция
Приточный клапан в сан. узле
Доставка, сборка, контроль, гарантия
Доставка и выгрузка материалов
Включена доставка и выгрузка
Сборка домокомплекта
Сборка по проектной документации (КД)
Технический надзор
Контроль персональным прорабом
Гарантия
Три года
Дополнительные опции
Фундамент: Свайно-винтовой, стоимость от
134 500 ₽
Фундамент: Железобетонные сваи, стоимость от
177 500 ₽
Коммуникации
Электропроводка: розетки, выключатели, лампы, распределительный щиток
330 400 ₽
Водоснабжение: открытая разводка ХВС, ГВС и канализация
217 600 ₽
Автономная канализация: станция биологической очистки (Интал Био-5).
214 700 ₽
Отопление: электрические обогреватели и электрический водонагреватель
251 000 ₽
Отопление: электрический котел + радиаторы
657 500 ₽
Теплый пол под ключ + стяжка
773 800 ₽
Приготовление ХВС: бойлер косвенного нагрева на 150 литров
145 000 ₽
Бытовая сантехника
126 500 ₽
Варианты внутренней отделки
Замена Евровагонки на ГКЛ 2 слоя
81 600 ₽
Замена Евровагонки на Имитацию бруса (стены, перегородки)
102 600 ₽
Ламинат, 33 класс, толщина 8мм.
189 000 ₽
Установка перегородочных дверей (МДФ + Эко-шпон)
142 900 ₽
Покраска внутренних стен воском Teknoviks в 3 слоя (грунтовка + два слоя воска)
324 300 ₽
Варианты внешней отделки
Покраска фасада красками Teknoviks в 3 слоя (грунтовка + два слоя краски)
301 900 ₽
Отделка фасада сайдингом "Дёке"
192 700 ₽
Отделка фасада "Hauberk" (камень, кирпич)
261 300 ₽
Отделка фасада Имитацией бруса вертикально
53 900 ₽
Отделка фасада Фиброцементный сайдинг Decover
464 300 ₽
Установка москитных сеток, подоконников
30 300 ₽
Установка водосточной системы "Дёке"
102 300 ₽
Установка цокольных панелей "Дёке"
110 400 ₽
Конструктивные элементы
Добавить в теплый контур отделку пола: Quick Deck или OSB
283 800 ₽
Добавить в теплый контур отделку стен и перегородок: Евровагонкой
469 300 ₽
Добавить в теплый контур обшивку потолка: Евровагонкой
156 500 ₽
Антисептирование силового каркаса на производстве
68 300 ₽
Усиленные лаги пола и потолка - 200мм.
55 500 ₽
Поднятие потолка на 150мм
75 800 ₽
Сетка от грызунов
35 700 ₽
Перекрестное утепление 50мм (пол, стены, потолок)
188 000 ₽
Тепло-звукоизоляция наружных стен Белтермо 20мм.
125 100 ₽
Аренда блок-контейнера для проживания бригады
63 100 ₽
Аренда биотуалета
25 600 ₽
Кастомизируйте свой дом
По вашим наброскам и чертежам совместно с архитектором создадим неповторимый дом мечты. Оставьте заявку и наш специалист свяжется с вами.
Причины заказать дом именно у нас
1
Гарантия на ваш дом на 5 лет
2
Оплата работ после сдачи объекта
3
Надзор на всех этапах монтажа и строительства
4
Не срываем сроки, платим неустойки
5
Дома строятся только по проектной документации архитектора
6
Работаем с ипотекой, материнским капиталом, субсидиями
Зафиксируйте стоимость дома

Посмотрите видео о контроле качества при строительстве








